Opis nieruchomości
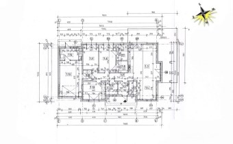
Wolnostojący, parterowy dom jednorodzinny z garażem w bryle i tarasem, ogrodzony.Wykończony pod klucz, z fotowoltaiką i ogrzewany pompą ciepła!
Nowoczesny układ i design.
Idealny dla rodziny.
Dom z kuchnią w zabudowie i dużą spiżarnią z półkam już wyposażony.
Garderoba w korytarzu,
2 łazienki, jedna z wanną, druga z prysznicem, obie z oknami.
Dodatkowe wyjście z kotłowni do ogrodu.
3 sypialnie, salon z aneksem, przedsionek garażu z zabudową pod pralnię.
Zaciszne otoczenie na Osiedlu Villpark, tuż przy lesie, bardzo słoneczne.
W pobliżu miejscowości ze szkołą, marketami i kościołem.
Zapraszam,
Anna Rębacz-Robaszkiewicz
tel.: 606 766 100
Nota prawna
Opis oferty zawarty na stronie internetowej sporządzany jest na podstawie oględzin nieruchomości oraz informacji uzyskanych od właściciela, może podlegać aktualizacji i nie stanowi oferty określonej w art. 66 i następnych K.C.Szczegóły



